Llanthony Priory, Llanthony, Vale of Ewyas, Monmouthshire
Name: Llanthony Priory – (Origin of name)
Denomination: Roman Catholic
Built: late 12th century
|
Photography: John Ball (except where indicated)
Date: 9 January 2011
Camera: Nikon D50 digital SLR
|
On a sunny Sunday afternoon in January 2011, I followed the mountain road from Hay-on-Wye over the Black Mountains to Abergavenny. It was a magical journey. The route took me through the Gospel Pass and then down the beautiful Vale of Ewyas, where lie the ruins of Llanthony Priory, the subject of this web-feature. I have illustrated the Priory with my own photographs, supplemented by a selection of old engravings, a marvellous photograph by Philip Halling, and quotations from various historical and other printed sources.
Note 1. Distinguished Monmouthshire artist and historian Fred Hando (1880-1970) wrote, ". . .that first sight of Llanthony, sleeping in its cradle of hills, caused all other memories to vanish. Was it the rounded grace of the hills, gently dipping in salute? Was it the varied play of light and shade over the green valley? Was it the perfect composition of the design, every line leading to the Abbey? Something intangible as well—an element which made that scene forever ours, and us, I firmly believe, part of the place."
[Source: The Pleasant Land of Gwent by Fred J. Hando, R. H. Johns Ltd., Newport, 1944, p. 91]

Above: Llanthony Priory and the Vale of Ewyas, viewed from Hatterall Hill (16 October 2010)
[Photograph copyright Philip Halling and licensed for reuse under this Creative Commons Licence]
Note 2. Llanthony Priory is in the care of CADW: Welsh Historic Monuments, whose on-site information board explains: "Llanthony Priory originated with the settlement of two hermits, William de Lacy and Ernisius. Gathering a band of followers around them, they built a church** which was consecrated in 1108; ten years later it was established as a house of Augustinian canons. The Augustinians, popularly known as Black Canons from the colour of their outer garment, were organized on monastic lines but, unlike monks, were all ordained priests, going out to preach and hold service in churches nearby. During a period of disturbance in the 1130s, the canons sought refuge in Gloucester where a second priory, Llanthony Secunda, was founded. Gradually this gained in importance and eventually came to overshadow the mother house. Meanwhile, more settled conditions and increased income from grants of land enabled a start to be made on replacing the priory buildings here. The church came first, dating mainly from 1180-1220. Buildings around the cloister followed in the mid 13th century including the chapter house, where the canons held their daily meeting, and their dining hall. The prior's lodging was in the west range, where the hotel is now. At the Dissolution of the monasteries Llanthony Priory was surrendered in 1538, David, the last prior, and four remaining canons receiving pensions. Parts of the ruins collapsed in the late 18th and early 19th centuries, but what remains has now been conserved to prevent further loss."
**Note: St David's Church, which is adjacent to the priory, is the subject of a separate 'Welsh Churches and Chapels Collection' feature.
Above: West end of Llanthony Priory, depicted in an early 19th century engraving.
[Engraved by J. Storer from a drawing by Varley in The Beauties of England and Wales: or Original Delineations, Topographical, Historical, and Descriptive Vol. XI, by Rev J. Evans and J. Britton, Vernor et al., London, 1810]
Circa 1800, the western range (above right) became a shooting lodge. It is now the Llanthony Priory Hotel.
Above and below: West end of Llanthony Priory.
Note 3. Author Tim McCormick writes: "The west front is an ambitious affair, and [Llanthony] was the only monastic church in Wales to feature a pair of western towers. The latter originally had four stages, but only three now remain."
[Source: The Cathedrals, Abbeys & Priories of Wales, by Tim McCormick, Logaston Press, Almeley, 2010, p. 93; ISBN 978-1-90666-329-2]
Note 4. Eight centuries ago, Archdeacon Giraldus Cambrensis (c.1146-1223)—Gerald of Wales—visited Llanthony Priory during his journey round Wales in 1188. He devoted an entire chapter to Llanthony in his book The Journey Through Wales. T. J. Hughes writes: "The first recorded impressions of the [Priory] were written—as evocatively as any since—by the incorrigible Gerald of Wales. His depictions of the deer on the high ridges, the deep valley "no broader than an arrowshot", and the monks enjoying their contemplative surroundings in their cloister of mountains, are an airy idyll he floats before us, only to puncture with a list of their early deaths and vices. The high and narrow landscape still dominates the atmosphere, but the human contribution is a curious assemblage of farmhouse, gatehouse, church and church ruin, and even, in the west range of the monastery buildings, a small and unexpected hotel and bar. The church's great west front, intended to impress and greet all new arrivals, now butts onto a small enclosed domestic garden, in which sometimes the washing is hung out."
[Sources: Wales's Best One Hundred Churches, by T. J. Hughes, Seren (Poetry Wales Press), Bridgend, 2006, p. 263; ISBN 978-1-85411-427-3 and Gerald of Wales: The Journey Through Wales, translated by Lewis Thorpe, Penguin Books, London, 1978; ISBN 0-140-44339-8]
Above and below: Northwestern aspect, showing arches separating nave from north aisle.
Note 5. After a quarrel with his father, the Oxford educated English poet Walter Savage Landor (1775-1864) moved to Wales, where he wrote the epic poem Gebir. Landor bought Llanthony Priory estate and lived for a time at the Lodge. He wrote affectionately of Llanthony:
"I loved thee by thy streams of yore, By distant streams I love thee more."
Unfortunately, Landor's attempts to restore the priory came to grief when he was declared bankrupt in 1813.
[Source: The Pleasant Land of Gwent by Fred J. Hando, R. H. Johns Ltd., Newport, 1944, p. 92]
Above: Northeastern aspect, depicted in a 19th century engraving.
[Source: Llanthony Priory Gwent, by O. E. Craster, Department of the Environment Official Handbook, HMSO, London, 1963]
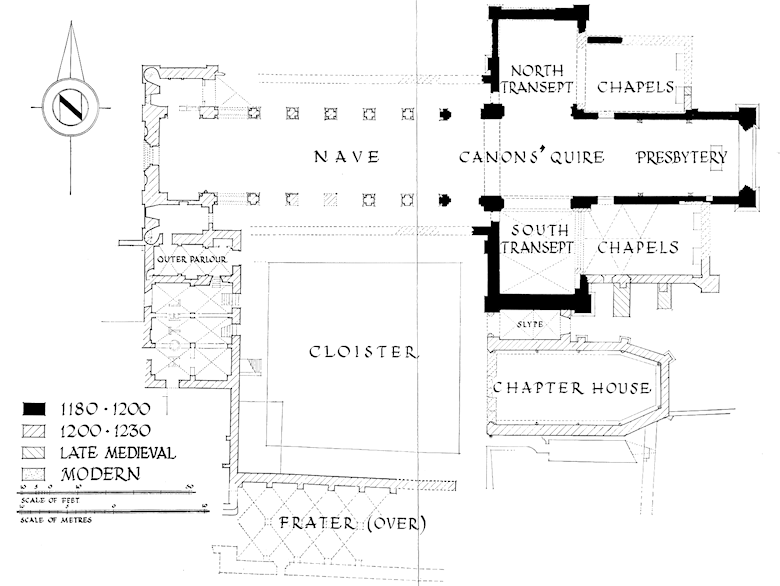
Above: Nave and arched entrance to canons' quire (see plan, bottom of page).

Above: Presbytery window (left) and fragment of north chapel wall (right).
Note 6. Fred Hando points out that ". . . no window in the 'Presbytery' had its lower sill lower than fourteen feet from the ground. Like many of our parish churches, this was a place of defence as well as of worship. By the year 1200, when the extensions were made, the land was more peaceful, and the new windows were but four feet from the ground."
[Source: The Pleasant Land of Gwent by Fred J. Hando, R. H. Johns Ltd., Newport, 1944, p. 92]
Right: Passageway between south transept and chapter house.
Right: Chancery arch and nave, depicted in an early 19th century engraving.
[Engraved by R. Roffe from a drawing by J. C. Smith after a sketch by E. Dayes in The Beauties of England and Wales: or Original Delineations, Topographical, Historical, and Descriptive Vol. XI, by Rev J. Evans and J. Britton, Vernor et al., London, 1810].
Note 7. The Victorian curate and diarist Francis Kilvert knew Llanthony Priory well. Describing a visit in April 1870, he wrote: "What was our horror on entering the [priory] enclosure to see two tourists with staves and shoulder belts all complete, postured among the ruins in an attitude of admiration, one of them of course, discoursing learnedly to his gaping companion and pointing out objects of interest with his stick. If there is one thing more hateful than another it is being told what to admire and having objects pointed out to one with a stick. Of all noxious animals too, the most noxious is the tourist. And of all tourists the most vulgar, illbred, offensive and loathsome is the British tourist."
[Source: Kilverts's Diary 1870-1879: Selections from the Diary of The Rev. Francis Kilvert, edited by William Plomer, Jonathan Cape, London, 1964].
Above: Plan of priory. [Source: Llanthony Priory Gwent, by O. E. Craster, Department of the Environment Official Handbook, HMSO, London, 1963]
Below: Interactive Google Map of priory.
Jeffrey Thomas's Castles of Wales website also offers photographs and historical details of Llanthony Priory.
|